Photos Jokan-en
Honjo - Hinode 4-1-30
Jokan-en, a property with a garden, is situated in Honjo, 4.4 km from Honjo-Waseda Station, 10 km from Aqua Paradise Patio, as well as 13 km from Kezoji Amusement Park. The air-conditioned accommodation is 22 km from Kumagaya Rugby Stadium, and guests can benefit from private parking available on site and free WiFi. The property is non-smoking and is50 km from Ishidan-gai Steps.
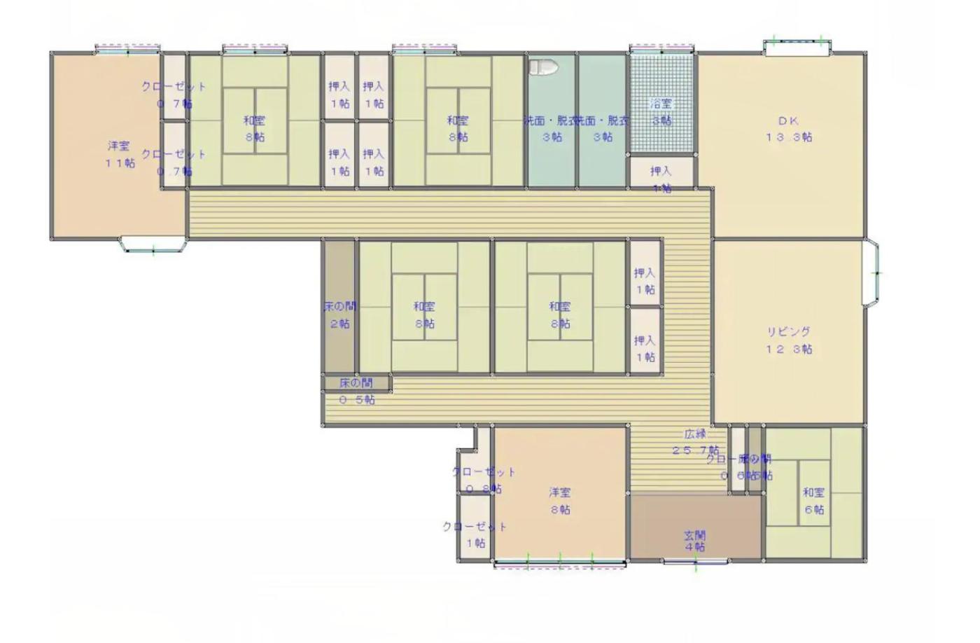
The holiday home features 4 bedrooms, a fully equipped kitchen with a microwave and a fridge, a washing machine and 1 bathroom with a hair dryer. Towels and bed linen are offered in the holiday home. For added privacy, the accommodation features a private entrance.
Takasaki Station is 22 km from Jokan-en, while Mikazukimura is 28 km from the property. Tokyo Haneda Airport is 108 km away.
The hotel day starts from hour 16:00 and ends at 10:00.
This property will not accommodate hen, stag or similar parties.
Four-Bedroom House. Boasting a private entrance, this spacious holiday home also includes 4 separate bedrooms and 1 bathroom with a hairdryer. The fully equipped kitchen has a stovetop, a refrigerator and a microwave. The holiday home offers air conditioning, a washing machine, tumble dryer, heating, as well as a flat-screen TV. The unit has 14 futons.
Additional information about the offer Japan - Honjo - Jokan-en, opinions of holidaymakers as well as available dates can be found on the website our partner.
License number: 指令本保第4-44号
Book now
Offer from our partner: Booking.com BG.25984









