Photos Aizanso - Vacation STAY 22208v
Nakijin - 272-3 Nakasone Nakijinson Aizanso
Situated 48 km from Maeda Cape, 13 km from Okinawa Churaumi Aquarium and 25 km from Busena Marine Park, Aizanso - Vacation STAY 22208v features accommodationin Nakijin. With free private parking, the property is 2.1 km from Koechi Beach and 8.7 km from Nakijin Gusuku Castle. The property is non-smoking and is located 36 km from Onna-son Community Center.
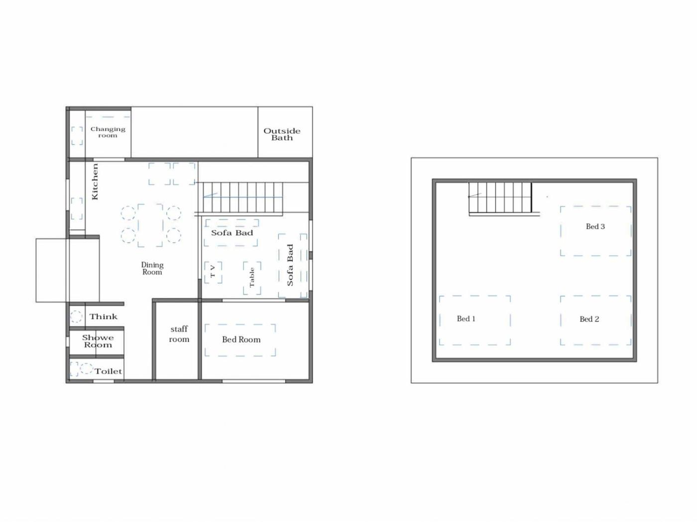
With free WiFi, this 2-bedroom holiday home provides a TV, a washing machine and a fully equipped kitchen with a microwave and fridge. The accommodation offers an air conditioning, a heating and a private bathroom.
Naha Airport is 85 km away.
The hotel day starts from hour 15:00 and ends at 11:00.
If you would like a qualified invoice,please contact the property directly.This property will not accommodate hen, stag or similar parties.
Holiday Home. The holiday home provides air conditioning, a washing machine, as well as a private bathroom featuring a bath and a shower. Guests will find a stovetop, a refrigerator, kitchenware and a microwave in the well-equipped kitchen. The holiday home also offers a barbecue. This holiday home features tumble dryer, heating and a TV. The unit offers 6 beds.
Additional information about the offer Japan - Nakijin - Aizanso - Vacation STAY 22208v, opinions of holidaymakers as well as available dates can be found on the website our partner.
License number: 北保第R5ー13号
Book now
Offer from our partner: Booking.com BG.27845









